Apartamento 2 quartos no Jardim Bela Vista em Gramado
Apartamentos à venda em Gramado, Jardim Bela Vista
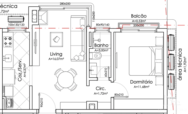
- 67.05 m²
- 50.37 m²
- 1 dormitório
- 1 banheiro
- 1 vaga
R$ 889.767 Parcela em até 100x Os valores e condições anunciados aqui estão sujeitos a reajustes.
Descrição
Conheça o Sollare: envolto pela mata nativa, o empreendimento se revela como um refúgio elevado no alto do vale. A apenas 850 metros do Hard Rock Café no Centro de Gramado, em um bairro tranquilo e residencial, com acesso facilitado por duas ruas. Apartamento com 1 dormitório (sacada balcão), living 2 ambientes com espera para lareira, cozinha americana com churrasqueira, área de serviço, banho social, 1 vaga de garagem. Esperas para água quente e ar condicionado. Esquadrias com vidros duplos, piso laminado e porcelanato. Condomínio com elevador, acesso com reconhecimento facial, infraestrutura para carregamento de carros elétricos. Entre em contato para saber mais!








